

Au început lucrările la parcul central din comuna Florești. Viitorul loc de agrement, peste drum de Domeniul Cantacuzino, va avea o suprafață totală de aproape 6000 metri pătrați.
Parcul se construiește lângă noua grădiniță, finalizată în anul 2024.
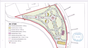
Sunt prevăzute lucrări de dezafectare, urmate de decopertare, săpături, încărcare și transport pământ, execuție alei parc, montare borduri mari și borduri mici, execuție trotuare și parcare auto cu pavaj, execuție spații verzi.
Șantierul deja a fost delimitat cu gard de plasă, pentru a limita accesul persoanelor în zona lucrărilor.
FOTO: Dă click pe imagini pentru a le vedea la dimensiune mare
Parcul va avea băncuțe, foișor, stâlpi de iluminat ornamentali, o zonă verde cu iarbă și pomi, zonă de fitness și va fi împrejmuit cu panouri metalice, pe stâlpi fixați în fundații de beton.
De asemenea, va dispune de o parcare auto proprie, de 140 mp.
„Aștept cu mare nerăbdare finalizarea acestui proiect frumos și ne cerem scuze pentru disconfortul creat în zonă până la terminarea lucrărilor. În ultimii ani am încercat să creăm parcuri sau zone de relaxare și joacă în mai multe puncte ale comunei și probabil vom continua să o facem dacă identificăm locații pretabile unor astfel de amenajări.” – a precizat primarul Simona David.
Investiția este susținută integral din bugetul local.
Ziarul de Ploiești
Articolul Au început lucrările la parcul central din comuna Florești (FOTO) apare prima dată în Ziarul de Ploiesti, stiri Prahova.












































